Projet Type Programme Milieu Lieu Client Année
La collectionneuse Restauration Appartement Patrimoine XXe Paris 16e Privé 2016
Croisée Rénovation Appartement Patrimoine XXe Paris 16e Privé 2016
Banc public Installation Retail & hospitality Grands magasins Paris 3e Tom Greyhound 2016
Trois objets Installation Retail & hospitality Grands magasins Paris 9e System 2017
Audi de mixage I Rénovation Auditorium, Studio de post-production Cinéma, Son Paris 10e Third 2017
Audi de mixage III Rénovation Auditorium, studios de post-production cinéma Cinéma Paris 3e Saya 2019
Audi de mixage II Rénovation Auditorium, studios de post-production Cinéma Genève Masé 2018
Hortus Enseignement - Académique ENSA Versailles - 2017
Les cours urbaines Enseignement - Académique ENSA Paris-Belleville - 2014
Maison Bernard Restauration Maison Patrimoine XXe, M.H. Maisons-Laffitte (78) Privé 2022
Villa Riberolle Réhabilitation Auditorium, Studios de post-production, Bureaux Patrimoine Industriel XIXe, Cinéma Paris 20e PolySon Post Production 2024
Studiolo Rénovation Appartement Urbain Paris 9e Le Crime 2021
Maison sur jardin Rénovation, Extension Maison Patrimoine XXe Cachan (94) Privé 2021
Ferme franc-comtoise Réhabilitation Maison Patrimoine agricole Mesnois (39) Privé 2021
Longère Réhabilitation 5 logements sociaux Patrimoine agricole Grand-Auverné (44) Une Famille Un Toit 44 2023
Grange Réhabilitation Maison Patrimoine agricole Belforêt-en-Perche (61) Privé 2023
Micro/Macro Enseignement - Académique Faculté d'architecture La Cambre-Horta, Bruxelles - 2022
Château de Bussy-Rabutin Diagnostic patrimonial Espaces d'accueil des visiteurs Patrimoine XVIIe, M.H. Bussy-le-Grand (21) Centre des Monuments Nationaux, ENSA Paris-Belleville 2021
Ecole Paul Bert Réhabilitation patrimoniale, Rénovation thermique Ecole élémentaire et I.M.E. Patrimoine XXe, patrimoine scolaire Le Havre (76) Ville du Havre 2024
Appartement 24 N.C. Rénovation Appartement Patrimoine XXe, M.H. (façades et parties communes) Paris 16e Privé 2024
Objets Trouvés Exposition - Musée Cité de l'Architecture et du Patrimoine, Paris
Barrault-Pressacco 2023
Centre de tri Rodier Réhabilitation Logements collectifs,  Coworking, ERP, Bureau de poste pour professionnel, Logistique urbaine Patrimoine XXe Paris 9e La Poste Immobilier 2025
Ancien hôpital La Rochefoucauld Réhabilitation, Construction Logements collectifs, Ateliers d’artiste, Ateliers de l’Ecole Spéciale d’Architecture, Galerie d’art, GHU, Café, Co-working Patrimoine XVIIIe, M.H Paris 14e Linkcity 2025
Monge Réhabilitation 12 logements sociaux Patrimoine haussmannien Paris 5e Paris Habitat 2025
Ancienne poste Réhabilitation 7 logements sociaux Patrimoine agricole, ancienne poste Treffieux (44) Une Famille Un Toit 44 2024
Philolaos Diagnostic patrimonial, Restauration Maison, Atelier, Résidence d’artiste Patrimoine XXe Saint-Rémy-lès-Chevreuse (78) Privé 2023
Ecole La Rose Réhabilitation, Extension Groupe scolaire Patrimoine XXe,  Patrimoine scolaire Marseille (13) SPLA-IN des Ecoles de Marseille 2025
Georges Perec, Human Algorithm Enseignement - Académique EAVT Paris-Est - 2024
Marbeau Restauration Appartement Patrimoine XXe, Art déco Paris 16e Privé 2025
Villa Arpin Diagnostic Patrimonial Maison Patrimoine XXe, Littoral Palavas-les-Flots (34) Privé 2023
Appartement 24 N.C. II Rénovation Appartement Patrimoine XXe, M.H. (façades et parties communes) Paris 16e Privé 2025
Ecole de la Marine Réhabilitation Logements collectifs, Logements étudiants, Bureaux, Activités Patrimoine XXe, Patrimoine scolaire Nantes (44) Loire Océan Métropole Aménagement, Nantes Métropole 2025
Maison Le Manchec Diagnostic patrimonial Maison Patrimoine XXe Chennevières-sur-Marne (94) Architecture de Collection 2026
Jussieu Mémoire de recherche - Académique Paris 19e ENSA Paris-La Villette / HESAM Université 2022
Audi de mixage IV Rénovation Auditorium, Studio de post-production Cinema Genève Masé 2023
Audi de mixage V Rénovation Auditorium, Studio de post-production Cinema Paris 15e Privé 2022
Hôtel Rénovation, Construction Hôtel, Spa Site classé Loir-et-Cher (41) Privé 2023
Appartement de faubourg Rénovation Appartement Faubourg Paris 11e Privé 2018
Paulin Diagnostic patrimonial, Restauration Maison Patrimoine XXe, M.H. Saint-Roman-de-Codières (30) Privé 2023
Porte-voix Rénovation Amphithéâtre Culture Versailles, (78) ENSA Versailles 2025
Une maison en forêt Restauration, Extension Maison Patrimoine XIXe Rueil-Malmaison, (92) Privé 2021
Vue sur mer Construction Maison Littoral Saint-Cast Le Guildo, (22) Privé 2023
Ecole Paul Bert
Fermer
Ecole Paul Bert
(texte)
(images)
1–14
RREEL - Ecole Paul Bert
RREEL - Ecole Paul Bert

Groupe scolaire Paul Bert, œuvre de l'Atelier LWD et du paysagiste Albert Audias

Type
Réhabilitation patrimoniale, Rénovation thermique
Programme
Ecole élémentaire et I.M.E.
Milieu
Patrimoine XXe, patrimoine scolaire
Lieu
Le Havre (76)
Statut
Concours lauréat - études en cours
Client
Ville du Havre
Année
2024
Équipe
PNG (mandataire), RREEL, Atelier Jean Chevalier, Ecallard, Batiserf, Inex, Opus
Superficie
4500 m²
Budget
7,3 M €HT
Héritage

Atelier LWD : Guy Lagneau, Michel Weill, Jean Dimitrijevic, 1951-1955

Description

Le groupe scolaire Paul Bert, édifié au début des années 1950 dans le cadre de la reconstruction du Havre, se distingue par sa structure métallique, son plan rationalisé et sa façade vitrée côté cour. Aujourd’hui, une partie importante de l’école est vacante et ses consommations énergétiques posent question. Lauréates du concours avec l’atelier PNG et le paysagiste Jean Chevalier, notre projet défend la conservation du bâtiment et de sa cour pour leur valeur patrimoniale et leur capacité formelle à évoluer vers les nouvelles pratiques pédagogiques et injonctions environnementales. Le projet restaure la transparence et l’ouverture originales du bâtiment, tout en améliorant les performances thermiques avec l’intégration des stores et panneaux solaires. À l’intérieur, le plan rationnel est conservé et adapté : l’Institut médico-éducatif occupe le premier étage, un grand escalier central relie les programmes et crée un espace de rencontre, tandis que le préau et le patio sont transformés en espaces polyvalents et bioclimatiques. Ces interventions permettent de moderniser l’école tout en respectant l’esprit du projet initial conçu par les architectes de l'atelier LWD, Guy Lagneau, Michel Weill et Jean Dimitrijevic, conciliant patrimoine et exigences contemporaines. 

(voir plus)
RREEL - Ecole Paul Bert

Façade Sud de l'école

RREEL - Ecole Paul Bert

Coupe transversale-projet d'origine

RREEL - Ecole Paul Bert

Façade Sud de l'école

RREEL - Ecole Paul Bert

Axonométrie d'une baie-type: conservation, réemploi, apport

RREEL - Ecole Paul Bert
RREEL - Ecole Paul Bert

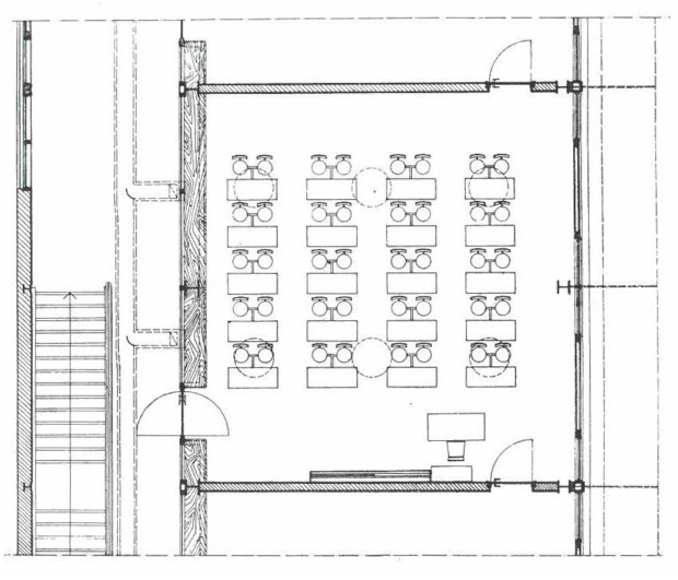
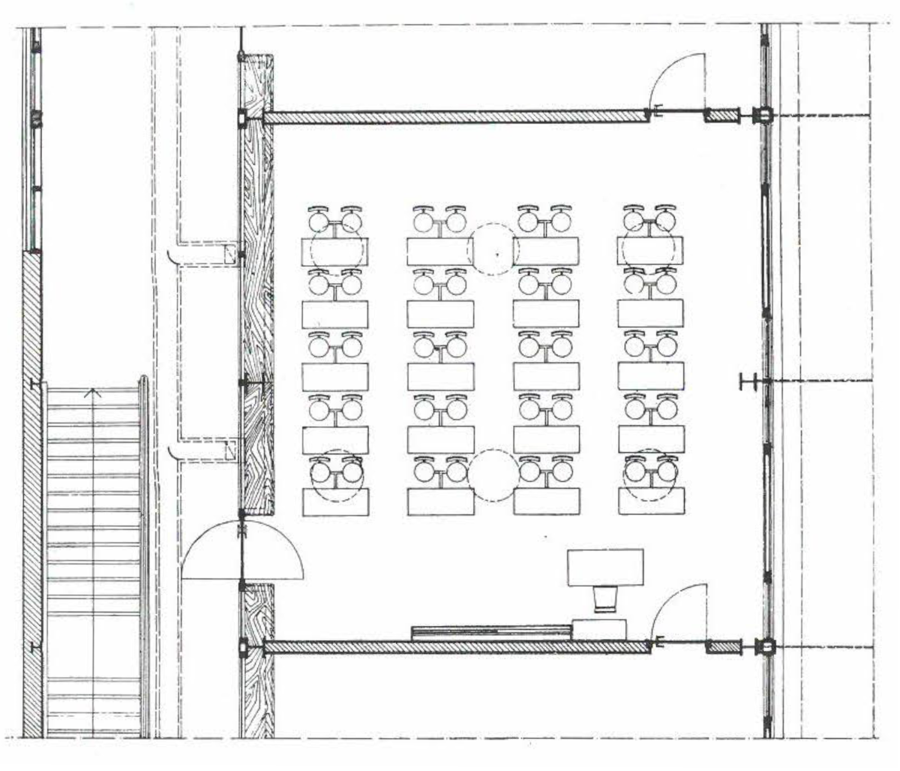
Salle de classe type

RREEL - Ecole Paul Bert

Salle de classe type d'origine

RREEL - Ecole Paul Bert

Une baie-type depuis une classe, 1955

RREEL - Ecole Paul Bert
RREEL - Ecole Paul Bert
RREEL - Ecole Paul Bert

Perspective, cour et façade Sud

arrow-left
arrow-right
close
RREEL - Ecole Paul Bert
RREEL - Ecole Paul Bert
RREEL - Ecole Paul Bert
RREEL - Ecole Paul Bert
RREEL - Ecole Paul Bert
RREEL - Ecole Paul Bert
RREEL - Ecole Paul Bert
RREEL - Ecole Paul Bert
RREEL - Ecole Paul Bert
RREEL - Ecole Paul Bert
RREEL - Ecole Paul Bert
RREEL - Ecole Paul Bert
RREEL - Ecole Paul Bert
Fermer
Chargement…